top of page

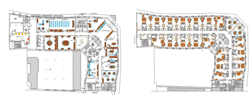
O.N.A.O.S.I. Torino

Arredamento

Luogo

Torino - Italia

Anno

2003

Ristrutturazione ed interior design dell'istituto O.N.A.O.S.I. a Torino

Torino, TO, Italia
bottom of page